40
$1,298,000 Sale
Listed 1 day
14686 St. Andrews Drive
· 4
· 3
· 1
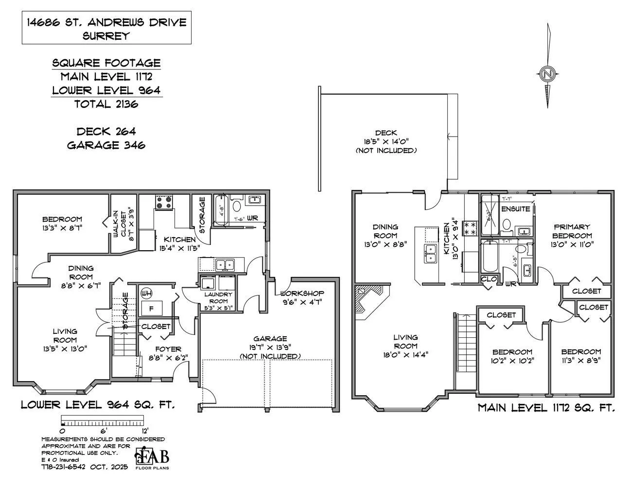
· 2136
Key Facts
Key facts for 14686 St. Andrews Drive
Property Type
House
Parking
1 garage, 4 parking
MLS #
R3062546
Size
2136 sqft
Basement
Finished
Listed on
-
Lot size
7104.00 sqft
Tax
$5,084.73 /yr
Days on Market
-
Year Built
1986
Maintenance Fee
-
Description
This well-maintained and inviting home offers a great mix of comfort, convenience, and potential. Just one minute from Hwy 1 and two minutes to Guildford Mall, it provides quick access to Vancouver, shopping, dining, and essentials. The home is also close to parks, transit, and top-rated schools—per...fect for families. Inside, you'll find spacious rooms with tasteful updates, including sleek quartz countertops. The fully fenced backyard is a private retreat, ideal for relaxing or entertaining. A separate basement suite adds flexibility for extended family or mortgage-helper potential; however, the property contains accommodation which is not authorized. Whether you're looking to move in or invest, this home offers strong long-term value. 24 Hours Notice. Touch Base Pls. Tks Luke
Similar Properties (No results)
Room Types
Living Room
-
Dimensions 14'4 x 18'
258 sqft
Kitchen
-
Dimensions 9'4 x 13'
121.33 sqft
Dining Room
-
Dimensions 8'8 x 13'
112.67 sqft
Courtesy of: RE/MAX LIFESTYLES REALTY